Bad Orb (cif). Das Wetter wartete dem Anlass entsprechend mit strahlender Sonne auf, als die Kreisbeigeordnete Sigrid Schindler und zahlreiche Herren aus Kommunalpolitik, Caritas und Kirche schaufelbewaffnet auf der Wiese neben der Frankfurter Straße zur Aktion schritten: Der erste Spatenstich für eine Caritas-Seniorenwohnlage "Im Spitalgarten" an der Frankfurter Straße 1 gleich vis-à-vis des Altenpflegeheims St. Martin war damit getan.
Im Festzelt – Ansprache Caritasdirektor Juch.C. Scharf/Caritas FD
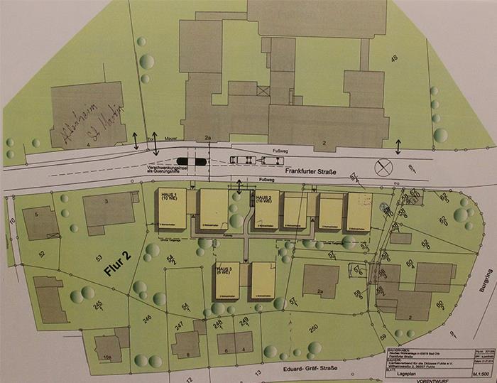
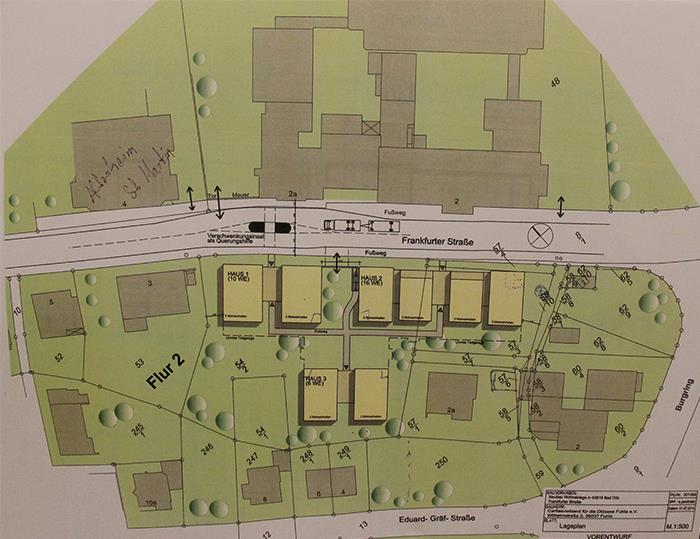
Vor dem Spatenstich hatte man im gut gefüllten Festzelt am Altenpflegeheim - auch zahlreiche Wohnungsinteressenten waren zu dem Anlass an die Baustelle gekommen, um sich ein erstes konkretes Bild zu machen - das Projekt der Caritas-Altenhilfe nochmals ausführlich vorgestellt. Dazu waren auch die Baupläne und Aufsichtsskizzen im Zelt ausgehangen worden.
Nachdem Diözesan-Caritasdirektor Dr. Markus Juch die Anwesenden begrüßt hatte, erläuterte er kurz das Grundkonzept der Caritas, die gerne Altenpflegeheime und Seniorenwohnanlagen in Nachbarschaft zueinander errichte, um Senioren ein umfassendes Service- und Betreuungsangebot zu machen, auf das ganz nach individuellem Bedarf zugegriffen werden könne. Der neue Standort für die geplante Seniorenwohnanlage mit 30 barrierefreien Wohnungen sei zudem zentrumsnah gelegen, was für ein selbstbestimmtes Leben von älteren Menschen eine besonders positive Rahmenbedingung sei. Caritasdirektor Juch freute sich, dass mit Altenpflegeheim-Leiter Stefan Smolinka ein kompetenter Ansprechpartner vor Ort sei, den an der Wohnanlage Interessierte ansprechen und sich informieren lassen könnten.
Auf die Plätze fertig los… - Konzentration für den gemeinsamen ersten Spatenstich zum Gemeinschaftsprojekt SeniorenwohnanlageC. Scharf/Caritas Fulda
Das Bauvolumen und den Kostenrahmen sowie die Finanzierung im Einzelnen stellte Caritas-Vorstandsmitglied Ansgar Erb vor. So setzen sich die rund 4,8 Millionen Euro Baukosten aus Eigenmitteln (1,45 Millionen Euro) und Bankdarlehen (2,68 Millionen Euro) zusammen, ferner komme für zehn der 30 Wohnungen öffentliche Förderung ("Sozialer Wohnungsbau") durch das Land Hessen (628.000 Euro) und die Bad Orb Kur GmbH (100.000 Euro) hinzu. Die Baumaßnahmen, so Erb, sollen am 2. Mai starten, im Januar 2017 solle der Rohbau stehen und im Oktober kommenden Jahres die Fertigstellung erfolgen.
Grußworte kamen von Bürgermeister Roland Weiß, die ehrenamtliche Kreisbeigeordnete Sigrid Schindler und Kurdirektor Dr. Jörg Steinhardt, die allesamt den Wert des nun im Werden begriffenen Neubaus für die Stadt und Region - auch im Hinblick auf den demografischen Wandel - unterstrichen und die positive Zusammenarbeit mit der Caritas vor Ort lobten.
Bauplan im Festzelt – so stehen in eineinhalb Jahren die Wohnhäuser da.C. Scharf/Caritas FD
Informationen zur Seniorenwohnanlage erhalten Interessierte vor Ort am besten bei der
Einrichtungsleitung
des Altenpflegeheims
St. Martin
Bad Orb
Telefon 06052 / 91565
E-Mail
